

发布时间:2020年01月30日 20:05
点击:当前,新型冠状病毒感染肺炎防控形势较为严峻,为避免因人员流动导致交叉感染,经学校防控领导小组研究决定,从1月30日12:00起,对教学区、家属区、国家大学科技园区进行隔离管理,现将有关事项通知如下:
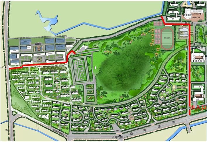
1.分区隔离示意图(见附图)
2.分区隔离管理期间,教学区由安全管理处负责管理,家属区由校工会负责管理,国家大学科技园区由科技产业管理处(国家大学科技园管理办公室)负责管理。
3.非工作人员不得进入教学区,在山海花园居住的工作人员从A24东侧道路通行,校外居住工作人员从学校南大门进出。
4.国家大学科技园区工作人员从学校西大门进出。从Dl8西侧门口凭出入证步行进出。
5.家属区人员从山海花园门口进出。
特此公告
草榴 疫情防控工作领导小组
2020年1月30日
